
Акція. Технічний дизайн-інтер'єра, 140 грн. м2. За 5 днів.
140 грнгодина
17 грудня 2025 р.
Мінімальний срок оренди 1 година
0 переглядів
Категорія
Ремонт та БудівництвоРемонтні роботи
ПроектуванняОписТЕХНІЧНИЙ-ДИЗАЙН ПРОЕКТ + РЕМОНТ
Мінімальний пакет (креслення) за 120 грн.м2
1. Обмірний план.
2. Планувальні рішення / Перепланування (1-2 варіанти)
3. План демонтажу перегородок.
4. План монтажу перегородок.
5. План приміщення після перепланування з розмірами
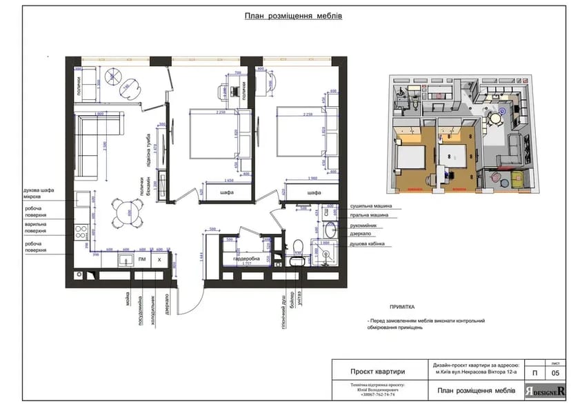
6. План розміщення меблів (2-3 варіанти)
7. Консультація інженера – будівельника.
Стандартний пакет за 195грн. м2:
1. Обмірювальний креслення.
2. Планувальні рішення / Перепланування (1-2 варіанти)
3. Плани з розстановкою меблів (1-3 варіанти)
4. План демонтажу перегородок.
5. План монтажу перегородок.
6. План приміщення після перепланування із розмірами.
7. План відчинення дверей
8. План підлоги із зазначенням: типу підлогового покриття, малюнка та розмірів
9. План підігріву підлоги
10. План стелі із зазначенням типу використовуваного матеріалу
11. План розміщення освітлювальних приладів
12. План вимикачів із зазначенням включення груп світильників
13. План розміщення електричних розеток
14. План розміщення сантехнічного обладнання
15. План розміщення кухонного обладнання
15. План розміщення кондиціонерів
16. Консультація інженера-будівельника
Креслення передаються замовнику в електронному вигляді PDF форматі. За бажанням можна оформити в альбомному вигляді (кольорові або чорно-білі) за окрему платню.
Надаємо повний комплекс послуг з ремонту та оздоблення житлових та нежитлових приміщень. Усі роботи виконуються кваліфікованими вузькопрофільними фахівцями. Усі фахівці Кияни. Якість, акуратність та дотримання технічних норм гарантуємо договором.
Як ми працюємо:
1. Виїзд на об'єкт (виміри, огляд об'єкта)
2. Упорядкування кошторису на будівельні роботи з побажаннями замовника.
3. Підписання договору на будівельні роботи та кошторису.
4. Підготовка до будівельних робіт (доставка обладнання, інструменту)
5. Рекомендації по матеріалам (закупівля будівельних матеріалів)
6. Усі будівельні роботи у кошторисі розбиті на етапи (демонтаж, монтаж, сантехніка 1-етап, електрика 1-етап, чернові роботи, оздоблювальні роботи, сантехніка 2-етап, електрика 2-етап, прибирання, вивіз сміття)
7. Усі роботи проводяться поетапно, після кожного етапу підписується АКТ прийнятих робіт із замовником. Тільки після цього приступаємо до наступного етапу.
Кошторис на ремонтно-будівельні роботи БЕЗКОШТОВНО.
Консультація інженера будівельника БЕЗКОШТОВНО.
Instagram: ***_kiev
Вайбер 06*********44
Юлій
Приватна Особа
Розташуваннямісто Київ, Київ

Схожі оголошення
ВсіДивитися більше



